Skogmo park barnehage

Vår oppgave
Prosjekteringsledelse og byggeledelse
Byggherre
Ullensaker kommune
Arkitekt
MAP Arkitekter AS
Areal
2200 m2
Ferdigstillelse
2025

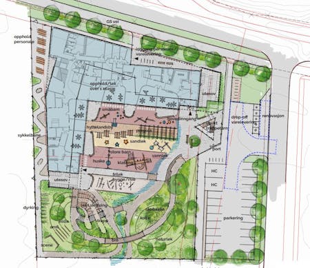
Om prosjektet: Ny 10 avdelings barnehage for ullensaker kommune. Barnehagen er plassert på en liten tomt. Deler av taket må være tilgjengelig for lek for å få tilstrekkelig uteoppholdsareal.
Prosjektet gjennomføres som et BREEAM-prosjekt med Good som ambisjon.


Svendby Bygg Consult | Aarnesveien 13, 2093 Feiring | Telefon: 63 96 11 70 | post@svendby.no